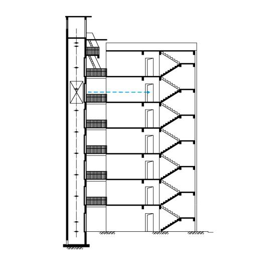
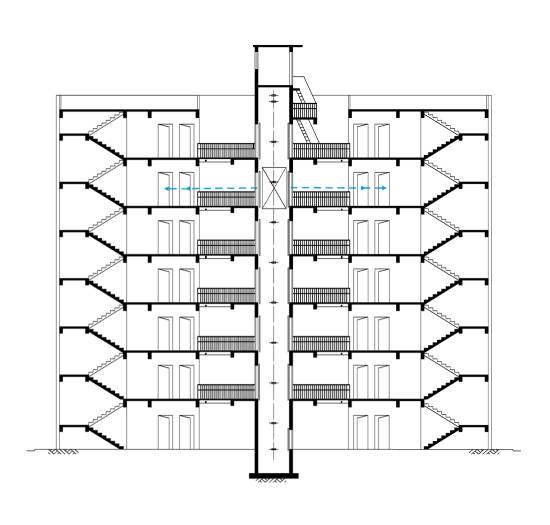
平層入戶是指電梯出入口位于樓梯平面,實現乘坐電梯直達指定樓層。直平臺式(平層入戶)可從住宅樓正面實現入戶,要求建筑物的正面空間足夠寬廣,加裝電梯后進出樓梯的距離滿足相關安全走火通道等要求。
-
側視圖
-
俯視圖
-
側視圖(透視)
